Haus der Jugend

Ort

Römerstraße 87
69115 Heidelberg | Weststadt

Projektträger

Stadt Heidelberg

Ansprechpartner*in

Moritz Bellers

Teilen

News und Veranstaltungen zum Projekt

06.07.2018

Haus der Jugend erhält IBA-Projekt-Status

Zur Finissage der IBA-Zwischenpräsentation 2018 wurden fünf Vorhaben vom Kandidaten- in den Projektstatus erhoben....

06.12.2017

Vision für den Neubau

Modern in seiner Ausstattung, einladend nach draußen, jugendgerecht bei seinen Angeboten – so wünschten sich die...

04.11.2016

Internationaler Wettbewerb

Das Haus der Jugend sollte mit einem Neubau seine stadtweit ausstrahlenden Aktivitäten im Rahmen der offenen Kinder-...

27.11.2015

Jugendliche gestalten Haus mit

Jugendliche aus allen Heidelberger Stadtteilen und Schularten hatten Chance, im November 2015 ihre Ideen in die...

25.06.2015

Gemeinderatsbeschluss zum Beteiligungsverfahren

Im Juni 2015 befürwortete der Heidelberger Gemeinderat einstimmig das Beteiligungsverfahren, das den jungen...

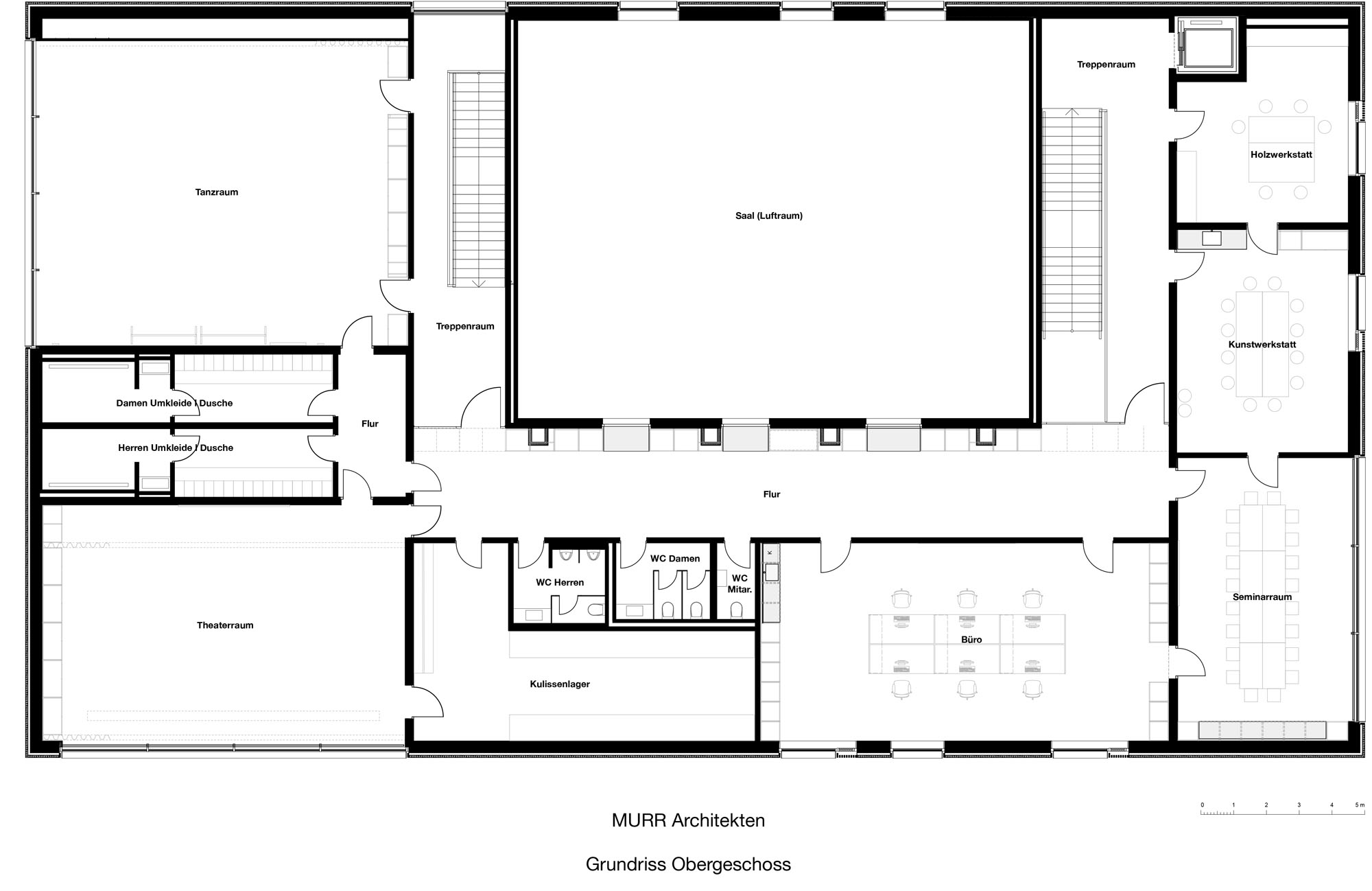
Das neue Haus der Jugend ist nicht nur architektonisch ein beachtenswerter Bau. Bemerkenswert ist auch der unübliche Prozess: Vor der Auslobung des international offenen, zweistufigen Architekturwettbewerbs konnten Kinder und Jugendliche (unter anderem über WhatsApp-Dialoge) ihre Wünsche und Ideen für den Neubau einbringen, die in das Raumprogramm für den Wettbewerb mit einflossen. Begleitet wurde dieser experimentelle Prozess, wie auch die beiden Phasen des Wettbewerbs, von der IBA Heidelberg. Weiterhin beriet die IBA in den Fragen des Raumprogramms, der Konzeption des offenen, internationalen Architekturwettbewerbs und der Entwurfsplanung des Hauses und der Freianlagen.

Das Haus der Jugend ist tief in der Heidelberger Nachkriegsgeschichte verankert. Noch heute erinnern sich ältere Heidelberger*innen an ihre ersten Tanzabende in diesem Haus, das in den 1950er-Jahren von den US-amerikanischen Streitkräften im Rahmen eines Re-Education-Programms für Jugendliche gebaut wurde. Auch der Neubau, der das in die Jahre gekommene Gebäude ersetzt, ist ein einladender Ort für junge Menschen aus der ganzen Stadt.

Dem Konzept der Offenheit haben Murr Architekten eine Form gegeben. Das vielfältige Programm verdeutlichen sie durch die markante Geometrie der Haupträume und deren großzügige Fenster, die sie in den schlichten wie ruhigen Baukörper eingeschnitten haben. »Uns interessiert besonders, dass es ein Haus der offenen Türen ist. Wir haben das Erdgeschoss in alle Himmelsrichtungen geöffnet – mit Türen zum Café, zum Foyer und zur Disco«, sagt Sebastian Murr. So wirkt das Haus der Jugend mit seinen breit gefächerten Freizeit- und Bildungsangeboten als echte Integrationsmaschine, die nicht nur den Ansprüchen einer Jugendinstitution im 21. Jahrhundert gerecht wird, sondern junge Menschen über alle Bildungsschichten und Altersklassen hinweg durch gemeinsame Aktivitäten vereint.

Beispielgebend war dieses Projekt schon vor Baubeginn. Zum einen wurde hier ein Ort für Jugendliche aller Bildungsschichten aus der ganzen Region geplant. Zum anderen wurde hier gezeigt, wie Beteiligung von Anfang an wichtige Hinweise ermöglicht, ohne die gestalterische Freiheit der Entwerfenden einzuschränken. Das Ergebnis zeigt, dass auch ein Haus mit einem komplexen Programm unterschiedlichster Nutzungen sich städtebaulich gut einfügen, sich als Einheit wahrnehmen lässt und dennoch die Vielfalt des Innern nach außen trägt.

Projekt-Meilensteine

Februar 2014

IBA-Projekt

November 2015

Start der Jugendbeteiligung, inkl. Social Media

Mai 2016

Bauherr*innenberatung, Fixierung des Raumprogramms

April 2017

Entscheidung der 1. Phase des offenen Architekturwettbewerbs mit öffentlicher Ausstellung

November 2017

Entscheidung der 2. Phase

August 2018

Start des Bauherr*innen-Jour-Fixe

März 2020

Spatenstich

Juli 2022

Fertigstellung